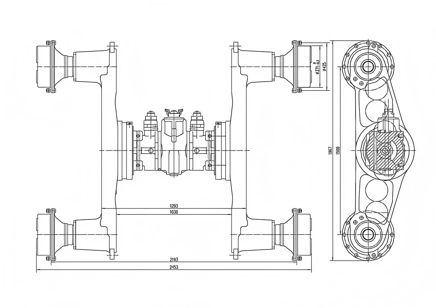
Logging Skidder Drive Axle
1. Utilizes a four-stage, high-ratio gearing system to substantially amplify torque delivery, meeting demanding power output requirements.
2. High ground clearance configuration from power input to wheel center, combined with a slewing bearing oscillation mechanism, enhances off-road capability and durability on uneven terrain.
3. The balance box employs multi-stage gearing to optimize load distribution, increase efficiency, and guarantee consistent power transmission.
4. Sealed multi-disc oil-immersed brake ensures stable and dependable braking operation.
5. Hydraulically-actuated differential lock provides full traction in adverse conditions, satisfying stringent operational requirements.
Introduction:
Engineered for demanding forestry and off-road applications, this equipment incorporates a four-stage reduction system to generate high torque, catering to rigorous power requirements. Its high-offset configuration, featuring a slewing bearing swing mechanism, optimizes terrain traversing capability and adaptability. Multi-stage gearing within the balance box enhances transmission efficiency, ensuring consistent power delivery. Reliable braking is provided by a wet multi-disc brake, while a hydraulic differential lock delivers comprehensive slip resistance under severe conditions, fulfilling stringent operational demands.
Main technical parameters:
Total transmission ratio | 25 |
Maximum input torque | 5600N.m |
Maximum input rotate speed | 2800r/min |
Rating load | 26000/16000Kg |
Brake oil pressure | 3MPa |
Differential lock oil pressure | 3MPa |
0il request for drive axle (API standard) | GL - 5:80W/90 Gear Oil (above - 26°C) |
0il request for brake | Cold region:L-HL46Wear resistant and low coagulation hydraulic oil |




